AOC is searching fo you …

Ambitious Enclave

LocationElectronic City Phase 1, Bangalore

Starting Base Price 37.75 Lakhs
1 ,2 ,3 BHK Residential Property
EMI Start at

Status: Ready to Move

  • Apartment Sizes Ranges in Between 500 sqft - 990 sqft.
  • Total Units & Towers: 756 Units & Towers
  • Total Project Area: Acres
  • Possession: December, 2023
  • Rera:

About

4.0
Excellent

Ambitious Enclave is a prominent Residential project located in Electronic City Phase 1, Bangalore. Spanning over Details Available Upon Request, the project consists of Details Available Upon Request with a total of 756 Units. Each tower has {total_floors}, offering 756 Units Apartments in various sizes. The address of the project is electronic city phase 1, bangalore.

Property Types and Sizes

Ambitious Enclave offers various apartments sizes to cater to different family needs. The 1 BHK+1T Apartments start from 500 sqft, while the larger 3 BHK+3T Apartments range up to 990 sqft. This variety allows buyers to select Apartments based on their budget and requirements.

Pricing Options

The pricing of Apartments in Ambitious Enclave varies depending on the size and configuration. The 1 BHK+1T Apartments are priced starting from 37.75 Lakhs to The 3 BHK+3T Apartments are priced from 74.75 Lakhs. These pricing options cater to a wide range of buyers, making the project accessible to various budgets.

Amenities and Features

Ambitious Enclave offers a range of world-class amenities to enhance the living experience:

  • Sports Amenities: Sports Facility, Kids Play Area, Swimming Pool

  • Convenience Amenities: Lifts, Car Parking, Power Back-up, Water Storage, Maintenance Staff.

  • Security Amenities: CCTV, Fire Alarm.

These facilities ensure that the residents lead a comfortable and active lifestyle.

Specifications and Construction Quality

The Apartments in Ambitious Enclave are built with high-quality materials and construction standards. The floors are laid with vitrified tiles, and the kitchens feature granite platforms. The bathrooms are equipped with premium CP and sanitary fittings. The Apartments also have provisions for split AC units and geysers, ensuring comfort and convenience for residents.

Location and Connectivity

Electronic City Phase 1 is a well-connected area in Bangalore, and Ambitious Enclave is strategically located with easy access to other parts of the city. The project is surrounded by essential amenities such as schools, hospitals, shopping centers, and more, ensuring residents have everything they need within reach. The connectivity to major roadways and transport hubs makes commuting easy for residents.

Location Advantages

Ambitious Enclave offers several advantages in terms of its location:

  • Educational Institutions: ISBR COLLEGE -TOP AVIATION COLLEGE IN BANGALORE.

  • Healthcare Facilities: .

  • Shopping and Entertainment: .

The location provides easy access to essential services and quick connections to other parts of the city, making it a highly desirable place to live.

Developer and Project Details

Ambitious Enclave is developed by the renowned real estate developer GM Infinite Dwelling. The project is registered under RERA with the number To Be Updated. The possession for the project is expected to begin in 2023-12-06, allowing future buyers to plan their move-in accordingly. GM Infinite Dwelling is known for its commitment to quality and timely delivery, ensuring a reliable and trusted development.

Key Information

  • Total Project Area: Details Available Upon Request

  • Total Units and Towers: 756 Units and Details Available Upon Request

  • Sizes: 500 sqft to 990 sqft

  • Address: electronic city phase 1, bangalore

Ambitious Enclave is a premier Residential project offering modern amenities, high-quality construction, and a convenient location.

Sports Amenities

  • Sports Facility Sports Facility
  • Kids Play Area Kids Play Area
  • Swimming Pool Swimming Pool

Convenience Amenities

  • Lifts Lifts
  • Car Parking Car Parking
  • Power Back-up Power Back-up
  • Water Storage Water Storage
  • Maintenance Staff Maintenance Staff

Safety Amenities

  • CCTV CCTV
  • Fire Alarm Fire Alarm

Price List for the Ambitious Enclave

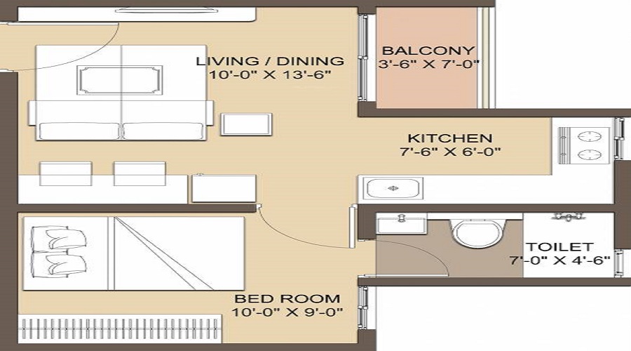
Ambitious Enclave Floor Plan
1 BHK

Saleable Area : 500 Sq. Ft.

call
₹37.75 Lakhs

EMI starting: ₹28,312

EMI Calculator

Loan Amount (80% of Total Cost) : 30.2 Lakhs
Check Rental Listings →

Bank Offers for Ambitious Enclave

imageBackh

Hi! I'm here to answer all your queries.

Vaishali Vasant Tiwari
Relationship Manager

Chat with us

Ambitious Enclave Specifications


FOUNDATION
FOUNDATION

Column foundation RCC plinth beam all around CC brick/red brick of 9 inch external and 4 1/2 inch internal walls.

STRUCTURE
STRUCTURE

Reinforced concrete framed structure with columns and beams External wall with 9" thick brick work Internal wall and partition wall.


FLOORING
FLOORING

Vitrified tiles for all roomsor similar Ceramic non-slippery tile flooring for bathroom, balcony and service areas.

KITCHEN
KITCHEN

Wall dado SS sink Polished Granite Kitchen top Stainless Steel Sink Provision for aqua guard.

ELECTRICALS
ELECTRICALS

Concealed copper wiring with three phase supply, and individual meter and necessary MCB with ISOLATOR in the DB inside the flat.


WATER SUPPLY
WATER SUPPLY

Bore well to sufficient Depth Metro water through under ground RCC sump RCC overhead tank.

Location

Location

Electronic City Phase 1, Bangalore

48% Livibility score

Electronic city phase 1 is at a distance of around 18 kilometers from Bangalore city and this place can be easily accessed via Hosur Road. The origin of this town can be attributed to the efforts of Keonics and the entire zone is spread in such a manner that it counts as one of the topmost electronic industrial parks in the country. The nearby areas are like HSR layout, Bommanahalli, ... Read More

educational-institute

Educational Institute

  • IZEE College
  • ISBR COLLEGE -TOP AVIATION COLLEGE IN BANGALORE
educational-institute

Transportation Hub

  • Electronic City Bus Stop
educational-institute

Shopping Center

Properties Price Trend in the Electronic City Phase 1

Similar Properties to Ambitious Enclave in Electronic City Phase 1

Ready to Move
Genesis Realtors Eco Sphere
Genesis Realtors Eco Sphere

Location Electronic City Phase 1, Bangalore

Price

₹ 37.5 Lakhs

Ready to Move
GK Shelters GK Meadows
GK Shelters GK Meadows

Location Electronic City Phase 1, Bangalore

Price

₹ 1.11 Cr

Ready to Move
Magnolia Infrastructure Magnolia Enclave
Magnolia Infrastructure Magnolia Enclave

Location Electronic City Phase 1, Bangalore

Price

₹ 65 Lakhs

Ready to Move
Mahaghar Properties Sai Srinivasa Enclave
Mahaghar Properties Sai Srinivasa Enclave

Location Electronic City Phase 1, Bangalore

Price

₹ 19.71 Lakhs

Ready to Move
Passion Ventures Passion Elite
Passion Ventures Passion Elite

Location Electronic City Phase 1, Bangalore

Price

₹ 80.03 Lakhs

Tools & Advice

Rates & Trends
Rates & Trends

Know all about Property Rates & Trends in your city.

View More right_arrow
EMI Calculator
EMI Calculator

Quarterly report with insights of Indian real estate market.

View More right_arrow
Investment Hotspot
Investment Hotspot

Quarterly report with insights of Indian real estate market.

View More right_arrow
Research Insights
Research Insights

Quarterly report with insights of Indian real estate market.

View More right_arrow

About GM Infinite Dwelling Projects and Developers

GM Infinite Dwelling
  • 64 Years of Experience
  • 25 Total Projects
  • 0 Ongoing Projects

GM Infinite Dwelling is one of the leading residential and commercial real estate service providers in India, who have a lot of experience in this industry. The projects developed by this Bangalore based company are facilitated with the latest technologies. They have changed the skyline of the country. The firm is known for its excellence, reliability, and innovation. ....
Read More

Ambitious Enclave Project’s Reviews & Ratings

Rating

Frequently Asked Questions

A: The project is located in Electronic city phase 1 ,Bangalore INDIA.

A: The total area of project is N/A

A: Yes, Parking facility is available in this project.

A: Banks associated with this project are SBI, ICICI Bank, HDFC Bank, AXIS BANK, CANARA BANK, INDIABULLS, PNB HOME LOAN, TATA CAPITAL, DHFL

A: The possession status of Ambitious Enclave is Ready to Move and is available for possession from December 23.

A: Total units in this project are 756.

A: The area of project for 1 BHK is 500 Sq ft.

A: The area of project for 2 BHK is 770 Sq ft.

A: The area of project for 3 BHK is 990 Sq ft.

A: Price for 1 BHK Apartment/Flat in this project is starting from 21.25 Lakhs

A: Price for 2 BHK Apartment/Flat in this project is starting from 32.73 Lakhs

A: Price for 3 BHK Apartment/Flat in this project is starting from 42.08 Lakhs

mainlogo

AddressofChoice is a leading real estate platform that simplifies home buying with verified listings, expert guidance, and end-to-end support — from property search to final purchase.

  • Head Office : A-82, 2nd Floor,
    Sector -4, Noida , UP-201301
  • info@addressofchoice.com
  • +91 89299 59847

© 2013-2026 Addressofchoice.com. All Rights Reserved

mascot