AOC is searching fo you …

Rama Metro Life Maxima Residences

LocationTathawade, Pune

Starting Base Price 52.18 Lakhs
2 ,3 BHK Residential Property
EMI Start at

Status: Ready to Move

  • Apartment Sizes Ranges in Between 669 sqft - 845 sqft.
  • Total Units & Towers: 279 Units & Towers
  • Total Project Area: 2 Acres
  • Possession: July, 2022
  • Rera:

About

3.0
Excellent

Rama Metro Life Maxima Residences is a premier Residential development located in Tathawade, Pune. Spread across 2 Acres, this large-scale project features 279 Units across Details Available Upon Request. The apartments sizes range from 669 sqft for 2 BHK+2T units to 845 sqft for 3 BHK+3T units, offering a range of options for potential buyers.

Property Configuration and Sizes

This project offers flexible apartments configurations, including 2 BHK+2T units starting at 669 sqft, and 3 BHK+3T units offering up to 845 sqft, providing ample living space for all types of buyers.

Price Range

The price for a 2 BHK+2T apartments at Rama Metro Life Maxima Residences starts at 52.18 Lakhs. The price for the 3 BHK+3T Apartments are starting at 65.91 Lakhs, providing a range of options to suit various budgets.

Amenities and Features

The amenities offered at Rama Metro Life Maxima Residences are designed to enhance residents' lifestyle. It includes sports facilities such as a Sports Facility, Kids Play Area. The project also boasts convenience features like a Lifts, Car Parking, Power Back-up, Water Storage, Maintenance Staff, Wi-fi connectivity, Multipurpose Hall, Cafeteria. The security system is reinforced with .

Developer Information

Rama Metro Life Maxima Residences is developed by Rama Group, one of India’s most trusted real estate developers. RERA registration number To Be Updated ensures that the project adheres to all legal and quality standards. Possession for the Apartments is slated to begin in 2022-07-05.

Construction and Quality

The construction quality at Rama Metro Life Maxima Residences is exceptional, with vitrified tiles used for flooring, granite countertops in kitchens, and high-quality sanitary ware in bathrooms. These details ensure that the homes are both durable and stylish.

Key Information

  • Total Project Area: 2 Acres

  • Total Units & Towers: 279 Units and Details Available Upon Request

  • Sizes: 669 sqft to 845 sqft

  • Project Location: tathawade, pune

  • Developer: Rama Group

  • RERA Registration No: To Be Updated

  • Possession Date: Expected in 2022-07-05

  • Construction Quality: Premium construction materials used

  • Security Features:

  • Sports Amenities: Sports Facility, Kids Play Area

  • Convenience Amenities: Lifts, Car Parking, Power Back-up, Water Storage, Maintenance Staff, Wi-fi connectivity, Multipurpose Hall, Cafeteria

Location and Connectivity

Located in the heart of Tathawade, Rama Metro Life Maxima Residences offers excellent connectivity to important parts of Pune, such as schools, hospitals, and malls. This strategic location enhances the living experience and provides all the essential conveniences.

Possession and Developer Details

Possession is scheduled for 2022-07-05, and the project is registered under RERA with the number To Be Updated. Rama Group is known for delivering high-quality Residential projects, making Rama Metro Life Maxima Residences a promising investment opportunity.

Sports Amenities

  • Sports Facility Sports Facility
  • Kids Play Area Kids Play Area

Convenience Amenities

  • Lifts Lifts
  • Car Parking Car Parking
  • Power Back-up Power Back-up
  • Water Storage Water Storage
  • Maintenance Staff Maintenance Staff
  • Wi-fi connectivity Wi-fi connectivity
  • Multipurpose Hall Multipurpose Hall
  • Cafeteria Cafeteria

Price List for the Rama Metro Life Maxima Residences

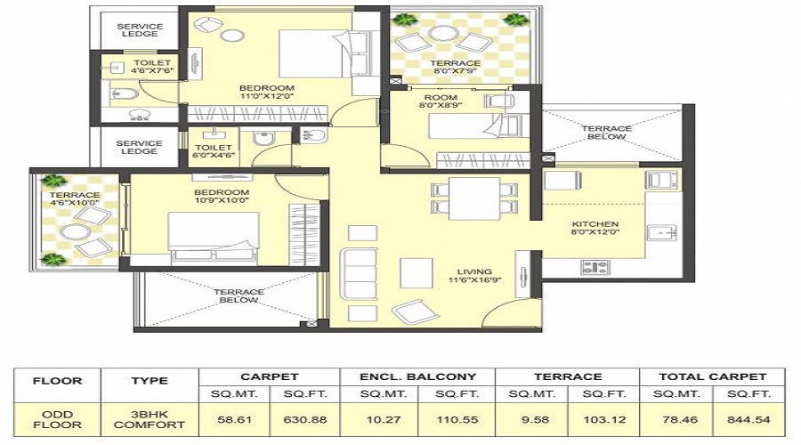
Rama Metro Life Maxima Residences Floor Plan
2 BHK

Carpet Area : 669 Sq. Ft.

call
₹52.18 Lakhs

EMI starting: ₹39,136

EMI Calculator

Loan Amount (80% of Total Cost) : 41.75 Lakhs
Check Rental Listings →

Bank Offers for Rama Metro Life Maxima Residences

imageBackh

Hi! I'm here to answer all your queries.

Vaishali Vasant Tiwari
Relationship Manager

Chat with us

Rama Metro Life Maxima Residences Specifications

Structure
Structure

Seismic Zone 2 compliant structure and Solid Block Masonry.

Planning
Planning

Plots in the well planned urban estate with the provision of quality infrastructure and public utility services.

Ground Water
Ground Water

Sweet Water with 100 Feet down from Ground Level.

Flooring
Flooring

Vitrified tiles in drawing/dining/bedrooms and kitchen.

Electrical & Power Backup
Electrical & Power Backup

Copper wiring in concealed PVC conduits Sufficient light and power points.

Area
Area

Clear Land Parcel with No High Tension Wire and No Villages

Location

Location

Tathawade, Pune

54% Livibility score

Tathawade is a locality in Pune that crosses Mumbai-Pune highway, and its near Punawale. It also has the Pawana river crossing near to this place. One can easily come to this place because the trains and buses are very frequent in this place. Marunji road runs next to this locality. It has the ISKCON temple in this locality where people from many places come and visit this temple for ... Read More

educational-institute

Educational Institute

  • Blossom Public School
  • Akshara International School
  • The Academy School
  • Podar International School Wakad
educational-institute

Transportation Hub

  • Chinchwad Railway Station
  • Akurdi Railway Station
  • Pimpri Railway Station
  • Tathawade
educational-institute

Shopping Center

Properties Price Trend in the Tathawade

Similar Properties to Rama Metro Life Maxima Residences in Tathawade

Ready to Move
Bhandari 7 Plumeria Drive
Bhandari 7 Plumeria Drive

Location Tathawade, Pune

Price

₹ 33.15 Lakhs

Ready to Move
Paranjape Schemes Azure
Paranjape Schemes Azure

Location Tathawade, Pune

Price

₹ 34.55 Lakhs

Ready to Move
Goel Ganga Aurum Park
Goel Ganga Aurum Park

Location Tathawade, Pune

Price

On Request

Ready to Move
Goel Ganga Ganga Cypress
Goel Ganga Ganga Cypress

Location Tathawade, Pune

Price

On Request

Ready to Move
Vilas Javdekar Homes Palladio
Vilas Javdekar Homes Palladio

Location Tathawade, Pune

Price

₹ 79.56 Lakhs

Tools & Advice

Rates & Trends
Rates & Trends

Know all about Property Rates & Trends in your city.

View More right_arrow
EMI Calculator
EMI Calculator

Quarterly report with insights of Indian real estate market.

View More right_arrow
Investment Hotspot
Investment Hotspot

Quarterly report with insights of Indian real estate market.

View More right_arrow
Research Insights
Research Insights

Quarterly report with insights of Indian real estate market.

View More right_arrow

About Rama Group Projects and Developers

Rama Group
  • 51 Years of Experience
  • 35 Total Projects
  • 0 Ongoing Projects

Rama Group is a renowned developer and builder of new commercial complexes as well as residential projects with lots of experience in this domain. This group is dedicated to constructing affordable homes for home seekers at the right time and at considerable prices with modern day architecture and latest facilities with quality. It has many projects lined up. ....
Read More

Rama Metro Life Maxima Residences Project’s Reviews & Ratings

Rating

Frequently Asked Questions

A: The project is located in Tathawade ,Pune INDIA.

A: The total area of project is 2 Acres

A: Yes, Parking facility is available in this project.

A: Banks associated with this project are SBI, ICICI Bank, HDFC Bank, AXIS BANK, CANARA BANK, INDIABULLS, PNB HOME LOAN, TATA CAPITAL, RELIANCE HOME, DHFL

A: The possession status of Rama Metro Life Maxima Residences is Ready to Move and is available for possession from July 22.

A: Total units in this project are 279.

A: The area of project for 2 BHK is 669 Sq ft.

A: The area of project for 3 BHK is 845 Sq ft.

A: Price for 2 BHK Apartment/Flat in this project is starting from 62.89 Lakhs

A: Price for 3 BHK Apartment/Flat in this project is starting from 79.43 Lakhs

mainlogo

AddressofChoice is a leading real estate platform that simplifies home buying with verified listings, expert guidance, and end-to-end support — from property search to final purchase.

  • Head Office : A-82, 2nd Floor,
    Sector -4, Noida , UP-201301
  • info@addressofchoice.com
  • +91 89299 59847

© 2013-2026 Addressofchoice.com. All Rights Reserved

mascot