AOC is searching fo you …

Amar Om Vasudev

LocationPlot No. 1387/10 At Borivali East, Western Suburbs, Mumbai

Starting Base Price 53.44 Lakhs
1 ,2 BHK Residential Property
EMI Start at

Status: Ready to Move

  • Apartment Sizes Ranges in Between 183 sqft - 746 sqft.
  • Total Units & Towers: 31 Units & 1 Towers
  • Total Project Area: 0.26 Acres
  • Possession: March, 2026
  • Rera: P51800045340

About

4.0
Excellent

Amar Om Vasudev is a remarkable Residential project located in the well-connected Borivali East locality of Mumbai. Spanning 0.26 Acres, the project features 31 Units in 1 Towers, offering a mix of 1 BHK+1T, to 2 BHK+2T Apartments ranging from 183 sqft to 746 sqft. The address for the project is plot no. 1387/10 at borivali east, western suburbs, mumbai.

Available Property Sizes

The Apartments at Amar Om Vasudev are available in a variety of sizes. The 1 BHK+1T units start at 183 sqft. The larger 2 BHK+2T Apartments go up to 746 sqft, providing ample space for families of all sizes.

Price Range

The prices for the Apartments at Amar Om Vasudev are designed to be accessible, with 1 BHK+1T units priced from 53.44 Lakhs and 2 BHK+2T Apartments from 2.18 Cr, depending on the size and configuration.

Developer Information

The project is being developed by Amar Associates, known for its commitment to quality and timely delivery. RERA registration number for the project is P51800045340 Units. Possession is expected to begin in 2026-03-12, ensuring that the property is well on track for future homeowners.

Amenities and Features

Amar Om Vasudev is designed to offer a blend of luxury and convenience. Key sports amenities include a Sports Facility, Kids Play Area. For relaxation, the development offers a Lifts, Car Parking, Power Back-up, Water Storage, Club house, Garden. The security features include CCTV, Security Personnel for enhanced safety.

Construction and Specifications

The project is constructed using premium materials such as vitrified tiles for flooring, granite countertops in the kitchens, and high-end sanitary ware in the bathrooms. These materials ensure both durability and elegance in every home.

Key Information

  • Total Area: 0.26 Acres

  • Units & Towers: 31 Units, 1 Towers

  • Sizes: 183 sqft to 746 sqft

  • Project Address: plot no. 1387/10 at borivali east, western suburbs, mumbai

  • Type: Residential Apartments

  • Developer: Amar Associates

  • RERA Registration No.: P51800045340 Units

  • Possession Start: 2026-03-12

  • Construction Quality: Premium materials, vitrified tiles, granite countertops

  • Security: CCTV, Security Personnel

  • Sports Facilities: Sports Facility, Kids Play Area

  • Convenience Amenities: Lifts, Car Parking, Power Back-up, Water Storage, Club house, Garden

Location Benefits

Amar Om Vasudev benefits from its location in Borivali East, offering great connectivity to schools, hospitals, shopping malls, and public transport systems. This makes it an ideal place to live, especially for families.

Developer and Project Details

Possession at Amar Om Vasudev will begin in 2026-03-12, and the project is RERA registered under P51800045340 Units. Developed by Amar Associates, this project promises a reliable investment for prospective homeowners.

Sports Amenities

  • Sports Facility Sports Facility
  • Kids Play Area Kids Play Area

Convenience Amenities

  • Lifts Lifts
  • Car Parking Car Parking
  • Power Back-up Power Back-up
  • Water Storage Water Storage
  • Club house Club house
  • garden Garden

Safety Amenities

  • CCTV CCTV
  • Security Personnel Security Personnel

Price List for the Amar Om Vasudev

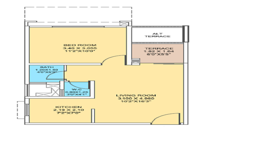
Amar Om Vasudev Floor Plan
1 BHK

Carpet Area : 183 Sq. Ft.

call
₹53.44 Lakhs

EMI starting: ₹40,076

Amar Om Vasudev Floor Plan
1 BHK

Carpet Area : 443 Sq. Ft.

call
₹1.29 Cr

EMI starting: ₹97,015

EMI Calculator

Loan Amount (80% of Total Cost) : 42.75 Lakhs
Check Rental Listings →

Bank Offers for Amar Om Vasudev

imageBackh

Hi! I'm here to answer all your queries.

Vaishali Vasant Tiwari
Relationship Manager

Chat with us

Amar Om Vasudev Specifications

Plumbing & Sanitary
Plumbing & Sanitary

White sanitary wares with European WC, CP fittings.

Flooring
Flooring

Vitrified tiles in drawing/dining/bedrooms and kitchen.

Kitchen
Kitchen

Kitchen will be designed to suit modular kitchen Panic button connected to security on the ground floor.

Planning
Planning

Plots in the well planned urban estate with the provision of quality infrastructure and public utility services.

Structure
Structure

Seismic Zone 2 compliant structure and Solid Block Masonry.

Area
Area

Clear Land Parcel with No High Tension Wire and No Villages

Location

Location

Borivali East, Mumbai

38% Livibility score

Borivali east is one of the leading areas from east and west parts of the Borivali area. The harbor railway separates them. One can see massive development in this area as far as real estate projects are concerned. For this area the biggest positive is its connectivity to the areas of the city as well as other parts of the state as it is on the Western Highway. The area has some of th... Read More

educational-institute

Educational Institute

  • Yakshita Makwana
  • LN College Of Management And Technology
educational-institute

Shopping Center

Properties Price Trend in the Borivali East

Similar Properties to Amar Om Vasudev in Borivali East

Ready to Move
Hetal Group Akasha Cooperative Housing Society
Hetal Group Akasha Cooperative Housing Society

Location Borivali East, Mumbai

Price

On Request

Ready to Move
Triveni Aster
Triveni Aster

Location Borivali East, Mumbai

Price

₹ 1.58 Cr

Ready to Move
Vibgyor Habitat
Vibgyor Habitat

Location Borivali East, Mumbai

Price

₹ 1.84 Cr

Ready to Move
Triveni Neel Aakash
Triveni Neel Aakash

Location Borivali East, Mumbai

Price

₹ 1.71 Cr

Ready to Move
Shree Ganesh Imperial Heights Apartments
Shree Ganesh Imperial Heights Apartments

Location Borivali East, Mumbai

Price

₹ 1.74 Cr

Tools & Advice

Rates & Trends
Rates & Trends

Know all about Property Rates & Trends in your city.

View More right_arrow
EMI Calculator
EMI Calculator

Quarterly report with insights of Indian real estate market.

View More right_arrow
Investment Hotspot
Investment Hotspot

Quarterly report with insights of Indian real estate market.

View More right_arrow
Research Insights
Research Insights

Quarterly report with insights of Indian real estate market.

View More right_arrow

About Amar Associates Projects and Developers

Amar Associates
  • 15 Years of Experience
  • 3 Total Projects
  • 0 Ongoing Projects

Amar Associates Probuild Private Limited is a Private incorporated on 17 May 2010. Known for its unwavering dedication to quality, Amar Associates has consistently delivered projects that embody sophistication and modernity. Their portfolio includes a diverse range of residential and commercial spaces, each meticulously designed to meet the evolving needs of their customers. One of the key pillars of Amar Associates' succe....
Read More

Amar Om Vasudev Project’s Reviews & Ratings

Rating

Frequently Asked Questions

A: The project is located in Borivali east ,Mumbai INDIA.

A: The total area of project is 0.26 Acres

A: Yes, Parking facility is available in this project.

A: Banks associated with this project are SBI, ICICI Bank, HDFC Bank, AXIS BANK, CANARA BANK, INDIABULLS, PNB HOME LOAN, TATA CAPITAL, RELIANCE HOME, DHFL

A: The possession status of Amar Om Vasudev is Ready to Move and is available for possession from March 26.

A: Total units in this project are 31.

A: The area of project for 1 BHK is 183 Sq ft.

A: The area of project for 2 BHK is 702 Sq ft.

A: Price for 1 BHK Apartment/Flat in this project is starting from 22.54 Lakhs

A: Price for 2 BHK Apartment/Flat in this project is starting from 86.49 Lakhs

mainlogo

AddressofChoice is a leading real estate platform that simplifies home buying with verified listings, expert guidance, and end-to-end support — from property search to final purchase.

  • Head Office : A-82, 2nd Floor,
    Sector -4, Noida , UP-201301
  • info@addressofchoice.com
  • +91 89299 59847

© 2013-2026 Addressofchoice.com. All Rights Reserved

mascot