₹ 82.81 Lakhs

@ 6700 per sq.ft

2 BHK+2T 1236/sqft Apartment for Sale in Ansal API Sushant Jeevan Enclave in Sushant Golf City

Residential Apartment for Sale

Sushant Golf City, Lucknow

  • Configruation2 BHK+2T
  • Unit area1236/sqft (Saleable )
  • Possession inMay 18.
  • DeveloperAnsal API
  • ProjectAnsal API Sushant Jeevan Enclave
  • ConstructionsReady to Move
  • Floor
  • Project Area Acres
  • Units324
  • EMI Start at

About Property

2 BHK+2T Apartments with Size 1236/sqft-saleable sqft for sale at ₹ 82.81 Lakhs in Ansal API Sushant Jeevan Enclave, Sushant Golf City Lucknow .The unit is Ready to Move and has( 2 BHK+2T Bedrooms, 2 Woshroom ). The apartment is available for INR 6700/Per Sq.ft. Negotiable. Reserved Parking is Available for residents. Buy 2 BHK+2T (1236/sqft-saleable sqft) Apartments in Ansal API Sushant Jeevan Enclave with Best Amenities & Affordable Budget.

Price Breakup

₹ 82.81 Lakhs | 1236/sqft-saleable sqft

Address

Sushant Golf City, Lucknow

RERA ID

N/A

Convenience

  • Sports Facility
  • Kids Play Area
  • Swimming Pool
  • Lifts
  • Car Parking
  • Power Back-up
  • Water Storage
  • Maintenance Staff
  • CCTV
  • Fire Alarm

Community & Power

Yes Gated Comunity & Full Power Backup

Master Plan

Total Occupied Area

N/A
project-details

Project Details

324 Units

N/A

Configuration

Configuration

2 ,3 BHK
Property

Property Types

Apartment

Other Sizes of Ansal API Sushant Jeevan Enclave

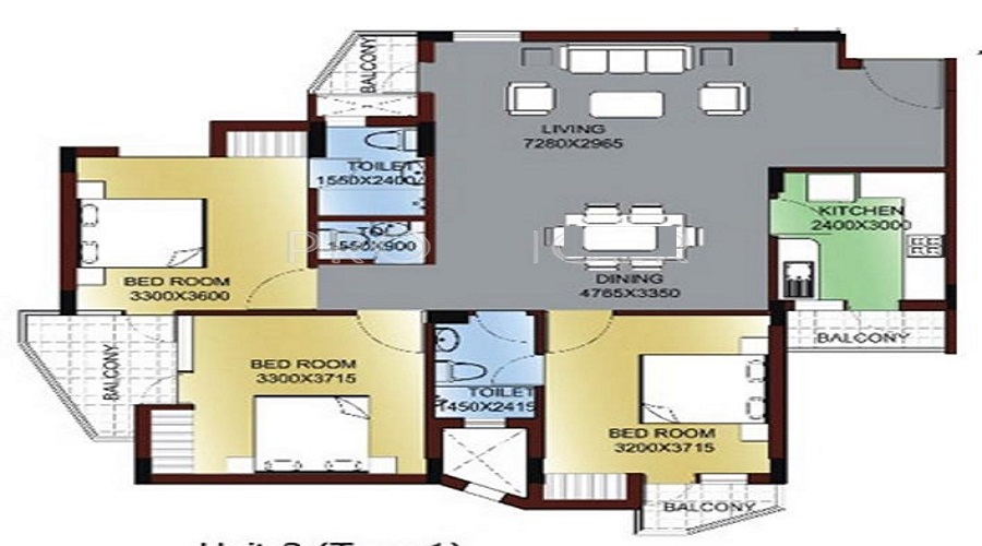
2 BHK+2T 1236/sqft-saleable  Sqft Apartment For Sale In Ansal API Sushant Jeevan Enclave In Sushant Golf City Floor Plan
2 BHK

Saleable Area : 1236 Sq. Ft.

call
₹ 82.81 Lakhs

EMI starting: ₹ 62,108

2 BHK+2T 1236/sqft-saleable  Sqft Apartment For Sale In Ansal API Sushant Jeevan Enclave In Sushant Golf City Floor Plan
3 BHK

Saleable Area : 1810 Sq. Ft.

call
₹ 1.21 Cr

EMI starting: ₹ 90,951

EMI Calculator

Loan Amount (80% of Total Cost) : 66.25 Lakhs
mainlogo

AddressofChoice is a leading real estate platform that simplifies home buying with verified listings, expert guidance, and end-to-end support — from property search to final purchase.

  • Head Office : A-82, 2nd Floor,
    Sector -4, Noida , UP-201301
  • info@addressofchoice.com
  • +91 89299 59847

© 2013-2026 Addressofchoice.com. All Rights Reserved

mascot