₹ 5.4 Cr

@ 65800 per sq.ft

2 BHK+2T 821/sqft Apartment for Sale in Neumec Interlude in Worli

Residential Apartment for Sale

Manjrekar Lane, Off. Dr. E. Moses Road, Worli, Mumbai 18

  • Configruation2 BHK+2T
  • Unit area821/sqft (Saleable)
  • Possession inJune 23.
  • DeveloperNeumec Group
  • ProjectNeumec Interlude
  • ConstructionsReady to Move
  • Floor1
  • Project Area0.58 Acres
  • Units53
  • EMI Start at

About Property

2 BHK+2T Apartments with Size 821/sqft-saleable sqft for sale at ₹ 5.4 Cr in Neumec Interlude, Worli Mumbai .The unit is Ready to Move and has( 2 BHK+2T Bedrooms, 2 Woshroom ). The apartment is available for INR 65800/Per Sq.ft. Negotiable. Reserved Parking is Available for residents. Buy 2 BHK+2T (821/sqft-saleable sqft) Apartments in Neumec Interlude with Best Amenities & Affordable Budget.

Price Breakup

₹ 5.4 Cr | 821/sqft-saleable sqft

Address

Manjrekar Lane, Off. Dr. E. Moses Road, Worli, Mumbai 18

RERA ID

Registration No: P51900005370

Convenience

  • Sports Facility
  • Kids Play Area
  • Swimming Pool
  • Lifts
  • Car Parking
  • Water Storage
  • Waste Disposal
  • Maintenance Staff
  • Wi-fi Connectivity
  • Multipurpose Hall

Community & Power

Yes Gated Comunity & Full Power Backup

Master Plan

Total Occupied Area

0.58 Area
project-details

Project Details

53 Units

1 Floors

Configuration

Configuration

2 ,3 BHK
Property

Property Types

Apartment

Other Sizes of Neumec Interlude

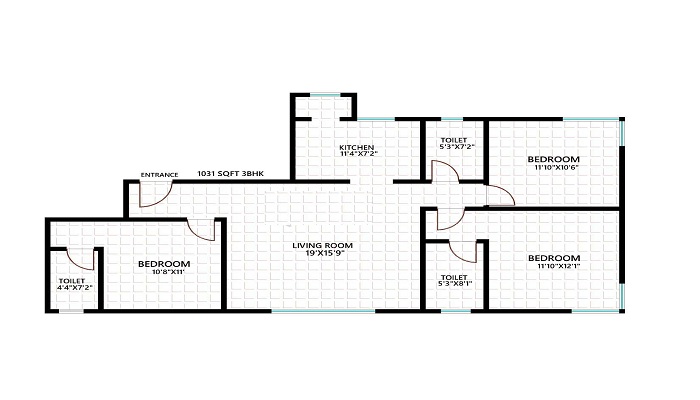
2 BHK+2T 821/sqft-saleable Sqft Apartment For Sale In Neumec Interlude In Worli Floor Plan
2 BHK

Saleable Area : 821 Sq. Ft.

call
₹ 5.4 Cr

EMI starting: ₹ 4.0516 Lakhs

2 BHK+2T 821/sqft-saleable Sqft Apartment For Sale In Neumec Interlude In Worli Floor Plan
3 BHK

Saleable Area : 1317 Sq. Ft.

call
₹ 8.67 Cr

EMI starting: ₹ 6.4993 Lakhs

EMI Calculator

Loan Amount (80% of Total Cost) : 4.32 Cr
mainlogo

AddressofChoice is a leading real estate platform that simplifies home buying with verified listings, expert guidance, and end-to-end support — from property search to final purchase.

  • Head Office : A-82, 2nd Floor,
    Sector -4, Noida , UP-201301
  • info@addressofchoice.com
  • +91 89299 59847

© 2013-2026 Addressofchoice.com. All Rights Reserved

mascot