AOC is searching fo you …

Pearl Sree Sadhan

LocationChoolaimedu, Chennai

Starting Base Price 68 Lakhs
2 ,3 BHK Residential Property
EMI Start at

Status: Ready to Move

  • Apartment Sizes Ranges in Between 850 sqft - 1650 sqft.
  • Total Units & Towers: 0 Units & 0 Towers
  • Total Project Area: 0 Acres
  • Possession: June, 2025
  • Rera: Rera Received

About

3.0
Excellent

Magnificent flats at affordable rates targeting especially the middle class to reach out to their dream house. Located in Chennai, Pearl Sree Sadhan by Pearl Constructions is offering flats that are a combination of comfort and luxury. Strategically engineered with the embodiments including, power, water, security, lifts, and more. Huge parking allotments have been installed for the residents. Its peaceful and serene ambience makes it one of its kind. It perfectly defines technological advancement, efficiency, quality and luxury. Live a well-connected life and enjoy the much affordable and state-of-art dream house of your choice that cannot get better than this.

Sports Amenities

  • Kids Play Area Kids Play Area
  • Sports Facility Sports Facility
  • Swimming Pool Swimming Pool

Convenience Amenities

  • Car Parking Car Parking
  • Club house Club house
  • Lifts Lifts
  • Maintenance Staff Maintenance Staff
  • Power Back-up Power Back-up
  • Waste Disposal Waste Disposal

Safety Amenities

  • Security Personnel Security Personnel

Price List for the Pearl Sree Sadhan

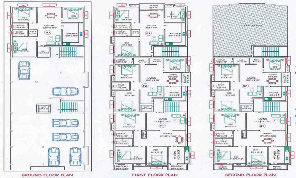
Pearl Sree Sadhan Floor Plan
2 BHK

Saleable Area : 850 Sq. Ft.

call
₹68 Lakhs

EMI starting: ₹50,999

EMI Calculator

Loan Amount (80% of Total Cost) : 54.4 Lakhs
Check Rental Listings →

Bank Offers for Pearl Sree Sadhan

imageBackh

Hi! I'm here to answer all your queries.

Vaishali Vasant Tiwari
Relationship Manager

Chat with us

Pearl Sree Sadhan Specifications

Structure
Structure

RCC structure as per code of practice

Security
Security

Security guard at Project main entrance. CCTV Surveillance.

Kitchen
Kitchen

Granite top working platform

Flooring
Flooring

Vitrified tiles in drawing/dining/bedrooms and kitchen

Plumbing & Sanitary
Plumbing & Sanitary

White sanitary wares with European WC, CP fittings

Electrical & Power Backup
Electrical & Power Backup

Copper wiring in concealed PVC conduits Sufficient light and power points Provision for TV and telephone points in living room and all bedrooms

Location

Location

Choolaimedu, Chennai

42% Livibility score

Choolaimedu falls under the large residential and commercial localities in Chennai and is bordered by Kodambakkam, Vadapalani, Mahalingapuram, Nungambakkam etc. It was previously a part of Puliyur village but now it has evolved into a hub of commercial enterprises and is connected by two of the busiest routes which are Arcot Road and Nelson Manickam Road. The nearest railways stations... Read More

educational-institute

Educational Institute

  • Loyola College
  • Commerce & Economics Block
  • Lalchand Milapchand Dadha Senior Secondary School
  • DAV Matriculation Higher Secondary School
educational-institute

Transportation Hub

  • Choolaimedu Bus Stop
educational-institute

Shopping Center

Properties Price Trend in the Choolaimedu

Similar Properties to Pearl Sree Sadhan in Choolaimedu

Ready to Move
Indu Housing SriKrish
Indu Housing SriKrish

Location Choolaimedu, Chennai

Price

On Request

Ready to Move
MM Builders Dhananjayaa
MM Builders Dhananjayaa

Location Choolaimedu, Chennai

Price

₹ 72 Lakhs

Ready to Move
Sri Hari Apartment
Sri Hari Apartment

Location Choolaimedu, Chennai

Price

₹ 1.2 Cr

Ready to Move
Leo Housing Thiruvengadapuram
Leo Housing Thiruvengadapuram

Location Choolaimedu, Chennai

Price

₹ 67.2 Lakhs

Ready to Move
Eeshani Vijay
Eeshani Vijay

Location Choolaimedu, Chennai

Price

₹ 96.96 Lakhs

Tools & Advice

Rates & Trends
Rates & Trends

Know all about Property Rates & Trends in your city.

View More right_arrow
EMI Calculator
EMI Calculator

Quarterly report with insights of Indian real estate market.

View More right_arrow
Investment Hotspot
Investment Hotspot

Quarterly report with insights of Indian real estate market.

View More right_arrow
Research Insights
Research Insights

Quarterly report with insights of Indian real estate market.

View More right_arrow

About Pearl Constructions Projects and Developers

Pearl Constructions
  • 25 Years of Experience
  • 35 Total Projects
  • 0 Ongoing Projects

The Pearl Constructions is a leading real estate group that has some of the known projects on its side. They have completed some commercial and residential projects in the leading cities across the country. The group is known for its commitment to quality work. ....
Read More

Pearl Sree Sadhan Project’s Reviews & Ratings

Rating

Frequently Asked Questions

A: The project is located in Choolaimedu ,Chennai INDIA.

A: The total area of project is N/A

A: Yes, Parking facility is available in this project.

A: Banks associated with this project are SBI, ICICI Bank, HDFC Bank, AXIS BANK, CANARA BANK, INDIABULLS, PNB HOME LOAN, TATA CAPITAL, RELIANCE HOME, DHFL

A: The possession status of Pearl Sree Sadhan is Ready to Move and is available for possession from June 25.

A: Total units in this project are N/A.

A: The area of project for 2 BHK is 850 Sq ft.

A: The area of project for 3 BHK is 1650 Sq ft.

A: Price for 2 BHK Apartment/Flat in this project is starting from 60.97 Lakhs

A: Price for 3 BHK Apartment/Flat in this project is starting from 1.18 Cr

mainlogo

AddressofChoice is a leading real estate platform that simplifies home buying with verified listings, expert guidance, and end-to-end support — from property search to final purchase.

  • Head Office : A-82, 2nd Floor,
    Sector -4, Noida , UP-201301
  • info@addressofchoice.com
  • +91 89299 59847

© 2013-2026 Addressofchoice.com. All Rights Reserved

mascot