AOC is searching fo you …

Shree Sapthagiri Meadows

LocationKadubeesanahalli, Bangalore

Starting Base Price 1.5 Cr
2 BHK Residential Property
EMI Start at

Status: Ready to Move

  • Apartment Sizes Ranges in Between 1028 sqft - 1230 sqft.
  • Total Units & Towers: 0 Units & 0 Towers
  • Total Project Area: 0 Acres
  • Possession: May, 2017
  • Rera:

About

3.0
Excellent

The Shree Sapthagiri Meadows project is built by the famous Sri Sapthagiri Constructions and it is shaped at the Kadubeesanahalli area of the Bangalore city. This ready to move project has 2 BHK flats with the size of 1028 sq.ft to 1230 sq.ft for the buyers. It will be a project comprising of every amenity which one expects from a builder of such high caliber. Amenities such as hi speed elevators, 24/7 security with CCTV cameras, exercising zone, sports track and many more are integral part of the project. The project is situated in one of the busiest corridors of the region making it a happening destination to live in.

Sports Amenities

  • Kids Play Area Kids Play Area
  • Sports Facility Sports Facility
  • Swimming Pool Swimming Pool
  • Gym Gym

Convenience Amenities

  • Car Parking Car Parking
  • Club house Club house
  • Lifts Lifts
  • Maintenance Staff Maintenance Staff
  • Power Back-up Power Back-up
  • Waste Disposal Waste Disposal

Price List for the Shree Sapthagiri Meadows

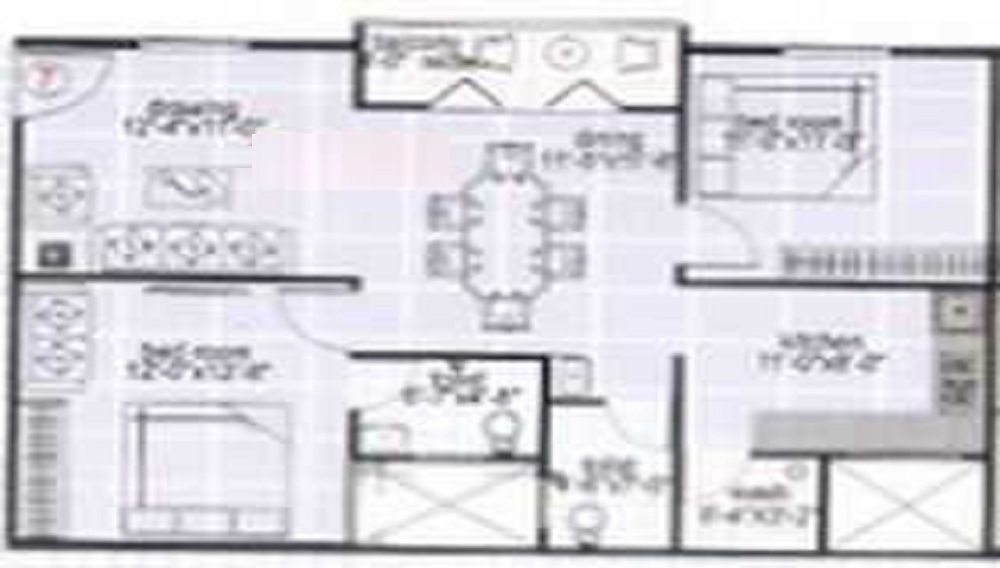
Shree Sapthagiri Meadows Floor Plan
2 BHK

Saleable Area : 1028 Sq. Ft.

call
₹1.5 Cr

EMI starting: ₹1.1256 Lakhs

Shree Sapthagiri Meadows Floor Plan
2 BHK

Saleable Area : 1230 Sq. Ft.

call
₹1.8 Cr

EMI starting: ₹1.3468 Lakhs

EMI Calculator

Loan Amount (80% of Total Cost) : 1.2 Cr
Check Rental Listings →

Bank Offers for Shree Sapthagiri Meadows

imageBackh

Hi! I'm here to answer all your queries.

Vaishali Vasant Tiwari
Relationship Manager

Chat with us

Shree Sapthagiri Meadows Specifications

Flooring
Flooring

Vitrified tiles in drawing/dining/bedrooms and kitchen

Kitchen
Kitchen

Mirror polished granite platform with dado in glazed tiles up to lintel level and SS sink

Electrical & Power Backup
Electrical & Power Backup

Grid Power from BESCOM, Modular switches, Copper electrical wiring all throughout via concealed conduits, 100% Power backup.

Security
Security

Otis / Equivalent elevators in each tower, CCTV Camera at all vantage points.

Structure
Structure

RCC framed structure Building and Concrete Solid Block Masonry (Int & Ext)

Plumbing & Sanitary
Plumbing & Sanitary

Rainwater Harvesting drain pipes included, Queo / Bravit / Kohler / Equivalent

Location

Location

Kadubeesanahalli, Bangalore

50% Livibility score

Kadubeesanahalli is surely catching an eye of investors these days because residential as well as commercial projects are developing at a fast speed in this region. Some of the important townships near this locality are Bellandur, Marathahalli, Ramagondanahalli, Panathur, JCR layout, etc. This place is very close to Prestige Tech Park II and Sakra World Hospital. Kannada is the local ... Read More

educational-institute

Educational Institute

  • Insight Academy School Bangalore
  • Geetanjali Olympiad School
  • New Horizon College of Engineering
  • MVJ College of Education
educational-institute

Shopping Center

Properties Price Trend in the Kadubeesanahalli

Similar Properties to Shree Sapthagiri Meadows in Kadubeesanahalli

Ready to Move
Vaswani Reserve
Vaswani Reserve

Location Kadubeesanahalli, Bangalore

Price

₹ 2.85 Cr

Ready to Move
NCC Urban Nagarjuna GreenWoods
NCC Urban Nagarjuna GreenWoods

Location Kadubeesanahalli, Bangalore

Price

₹ 1.1 Cr

Ready to Move
PropZone Sree Utopia
PropZone Sree Utopia

Location Kadubeesanahalli, Bangalore

Price

₹ 1.87 Cr

Ready to Move
Durga Coral
Durga Coral

Location Kadubeesanahalli, Bangalore

Price

₹ 1.85 Cr

Ready to Move
Kethana Eternal Blossom
Kethana Eternal Blossom

Location Kadubeesanahalli, Bangalore

Price

₹ 1.61 Cr

Tools & Advice

Rates & Trends
Rates & Trends

Know all about Property Rates & Trends in your city.

View More right_arrow
EMI Calculator
EMI Calculator

Quarterly report with insights of Indian real estate market.

View More right_arrow
Investment Hotspot
Investment Hotspot

Quarterly report with insights of Indian real estate market.

View More right_arrow
Research Insights
Research Insights

Quarterly report with insights of Indian real estate market.

View More right_arrow

About Sri Sapthagiri Constructions Projects and Developers

Sri Sapthagiri Constructions
  • 27 Years of Experience
  • 4 Total Projects
  • 0 Ongoing Projects

This property developing entrepreneur Sri Sapthagiri Constructions located at Bangalore is full of experience and professional team; who are continuously working for the fulfillment of dreams and projects of their clients. They have gained huge popularity in a very short span of time by fulfilling their aim. They have also completed numerous projects in other parts of the countries.   ....
Read More

Shree Sapthagiri Meadows Project’s Reviews & Ratings

Rating

Frequently Asked Questions

A: The project is located in Kadubeesanahalli ,Bangalore INDIA.

A: The total area of project is N/A

A: Yes, Parking facility is available in this project.

A: Banks associated with this project are SBI, ICICI Bank, HDFC Bank, AXIS BANK, CANARA BANK, INDIABULLS, PNB HOME LOAN, TATA CAPITAL, RELIANCE HOME, DHFL

A: The possession status of Shree Sapthagiri Meadows is Ready to Move and is available for possession from May 17.

A: Total units in this project are N/A.

A: The area of project for 2 BHK is 1028 Sq ft.

A: Price for 2 BHK Apartment/Flat in this project is starting from 47.8 Lakhs

mainlogo

AddressofChoice is a leading real estate platform that simplifies home buying with verified listings, expert guidance, and end-to-end support — from property search to final purchase.

  • Head Office : A-82, 2nd Floor,
    Sector -4, Noida , UP-201301
  • info@addressofchoice.com
  • +91 89299 59847

© 2013-2026 Addressofchoice.com. All Rights Reserved

mascot