AOC is searching fo you …

Smart Blue Bells

LocationAttibele Sarjapur Road, Bangalore, Karnataka.

Starting Base Price 1.11 Cr
3 BHK Residential Property
EMI Start at

Status: Ready to Move

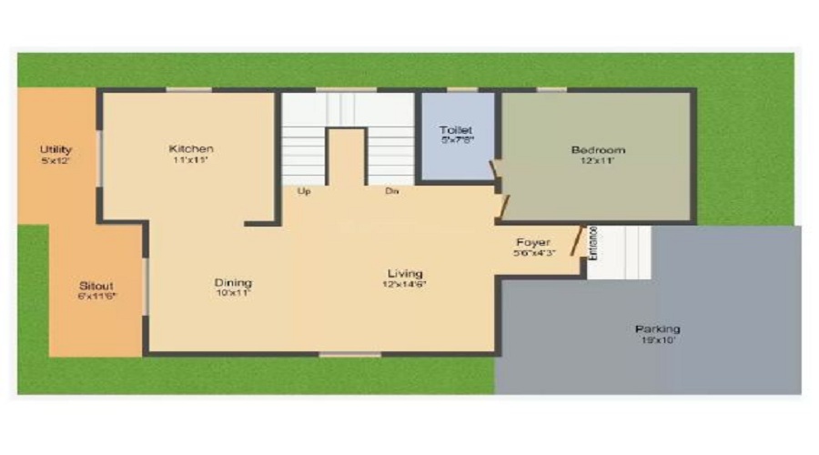
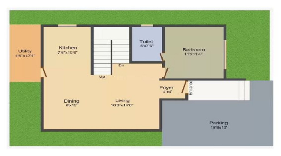
  • Apartment Sizes Ranges in Between 1716 sqft - 2220 sqft.
  • Total Units & Towers: 102 Units & Towers
  • Total Project Area: 5 Acres
  • Possession: May, 2018
  • Rera:

About

3.0
Excellent

Smart Blue Bells is a prominent Residential project located in Attibele, Bangalore. Spanning over 5 Acres, the project consists of Details Available Upon Request with a total of 102 Units. Each tower has {total_floors}, offering 102 Units Villas in various sizes. The address of the project is attibele sarjapur road, bangalore, karnataka..

Property Types and Sizes

Smart Blue Bells offers various apartments sizes to cater to different family needs. The 3 BHK+3T Villas start from 1716 sqft, while the larger 3 BHK+3T Villas range up to 2220 sqft. This variety allows buyers to select Villas based on their budget and requirements.

Pricing Options

The pricing of Villas in Smart Blue Bells varies depending on the size and configuration. The 3 BHK+3T Villas are priced starting from 1.11 Cr to The 3 BHK+3T Villas are priced from 1.43 Cr. These pricing options cater to a wide range of buyers, making the project accessible to various budgets.

Amenities and Features

Smart Blue Bells offers a range of world-class amenities to enhance the living experience:

  • Sports Amenities: Sports Facility, Kids Play Area, Gym

  • Convenience Amenities: Car Parking, Power Back-up, Maintenance Staff, Multipurpose Hall, Garden.

  • Security Amenities: CCTV, Fire Alarm.

These facilities ensure that the residents lead a comfortable and active lifestyle.

Specifications and Construction Quality

The Villas in Smart Blue Bells are built with high-quality materials and construction standards. The floors are laid with vitrified tiles, and the kitchens feature granite platforms. The bathrooms are equipped with premium CP and sanitary fittings. The Villas also have provisions for split AC units and geysers, ensuring comfort and convenience for residents.

Location and Connectivity

Attibele is a well-connected area in Bangalore, and Smart Blue Bells is strategically located with easy access to other parts of the city. The project is surrounded by essential amenities such as schools, hospitals, shopping centers, and more, ensuring residents have everything they need within reach. The connectivity to major roadways and transport hubs makes commuting easy for residents.

Location Advantages

Smart Blue Bells offers several advantages in terms of its location:

  • Educational Institutions: Attibele Public School.

  • Healthcare Facilities: .

  • Shopping and Entertainment: .

The location provides easy access to essential services and quick connections to other parts of the city, making it a highly desirable place to live.

Developer and Project Details

Smart Blue Bells is developed by the renowned real estate developer Smart Homz. The project is registered under RERA with the number To Be Updated. The possession for the project is expected to begin in 2018-05-16, allowing future buyers to plan their move-in accordingly. Smart Homz is known for its commitment to quality and timely delivery, ensuring a reliable and trusted development.

Key Information

  • Total Project Area: 5 Acres

  • Total Units and Towers: 102 Units and Details Available Upon Request

  • Sizes: 1716 sqft to 2220 sqft

  • Address: attibele sarjapur road, bangalore, karnataka.

Smart Blue Bells is a premier Residential project offering modern amenities, high-quality construction, and a convenient location.

Sports Amenities

  • Sports Facility Sports Facility
  • Kids Play Area Kids Play Area
  • Gym Gym

Convenience Amenities

  • Car Parking Car Parking
  • Power Back-up Power Back-up
  • Maintenance Staff Maintenance Staff
  • Multipurpose Hall Multipurpose Hall
  • garden Garden

Safety Amenities

  • CCTV CCTV
  • Fire Alarm Fire Alarm

Price List for the Smart Blue Bells

Smart Blue Bells Floor Plan
3 BHK

Carpet Area : 1716 Sq. Ft.

call
₹1.11 Cr

EMI starting: ₹83,010

Smart Blue Bells Floor Plan
3 BHK

Carpet Area : 1750 Sq. Ft.

call
₹1.13 Cr

EMI starting: ₹84,655

Smart Blue Bells Floor Plan
3 BHK

Carpet Area : 2143 Sq. Ft.

call
₹1.38 Cr

EMI starting: ₹1.0367 Lakhs

Smart Blue Bells Floor Plan
3 BHK

Carpet Area : 2220 Sq. Ft.

call
₹1.43 Cr

EMI starting: ₹1.0739 Lakhs

EMI Calculator

Loan Amount (80% of Total Cost) : 88.55 Lakhs
Check Rental Listings →

Bank Offers for Smart Blue Bells

imageBackh

Hi! I'm here to answer all your queries.

Vaishali Vasant Tiwari
Relationship Manager

Chat with us

Smart Blue Bells Specifications

Plumbing & Sanitary
Plumbing & Sanitary

White sanitary wares with European WC, CP fittings.

Flooring
Flooring

Vitrified tiles in drawing/dining/bedrooms and kitchen.

Kitchen
Kitchen

Kitchen will be designed to suit modular kitchen Panic button connected to security on the ground floor.

Planning
Planning

Plots in the well planned urban estate with the provision of quality infrastructure and public utility services.

Structure
Structure

Seismic Zone 2 compliant structure and Solid Block Masonry.

Area
Area

Clear Land Parcel with No High Tension Wire and No Villages

Location

Location

Attibele, Bangalore

48% Livibility score

Attibele is typically a town municipality council that is situated at Bangalore Urban district and in Karnataka. It is situated near the Tamil Nadu – Karnataka border and marked by an arch to denote the difference. It is 32 km away from Bangalore and 8 km away from Hosur. NH 7 road is connecting Attibele and Bangalore. It is easily accessible through buses and trains. One can use a ... Read More

educational-institute

Educational Institute

  • The Oxford Medical College, Hospital & Research Centre, Yadavanahalli
  • Attibele Public School
educational-institute

Transportation Hub

  • Attlibele Bus Stop
educational-institute

Shopping Center

Properties Price Trend in the Attibele

Similar Properties to Smart Blue Bells in Attibele

Ready to Move
Sai Anugraha Enclave
Sai Anugraha Enclave

Location Attibele, Bangalore

Price

₹ 60 Lakhs

Ready to Move
Kristal Group Kristal Aquamarine
Kristal Group Kristal Aquamarine

Location Attibele, Bangalore

Price

₹ 57.04 Lakhs

Ready to Move
Nambiar Builders Hamlet
Nambiar Builders Hamlet

Location Attibele, Bangalore

Price

₹ 68.11 Lakhs

Ready to Move
Upkar Estates Green Fields
Upkar Estates Green Fields

Location Attibele, Bangalore

Price

₹ 19.2 Lakhs

Ready to Move
Upkar Royal Garden
Upkar Royal Garden

Location Attibele, Bangalore

Price

₹ 96.75 Lakhs

Tools & Advice

Rates & Trends
Rates & Trends

Know all about Property Rates & Trends in your city.

View More right_arrow
EMI Calculator
EMI Calculator

Quarterly report with insights of Indian real estate market.

View More right_arrow
Investment Hotspot
Investment Hotspot

Quarterly report with insights of Indian real estate market.

View More right_arrow
Research Insights
Research Insights

Quarterly report with insights of Indian real estate market.

View More right_arrow

About Smart Homz Projects and Developers

Smart Homz
  • 23 Years of Experience
  • 1 Total Projects
  • 0 Ongoing Projects

Smart Homz have dedicated their life’s work towards creating a perfect real estate and housing solutions possible for their vast number of clients. It is committed to providing quality spaces that enrich today and envisage tomorrow. Focused builder with a significant local/National brand.  ....
Read More

Smart Blue Bells Project’s Reviews & Ratings

Rating

Frequently Asked Questions

A: The project is located in Attibele ,Bangalore INDIA.

A: The total area of project is 5 Acres

A: Yes, Parking facility is available in this project.

A: Banks associated with this project are SBI, ICICI Bank, HDFC Bank, AXIS BANK, CANARA BANK, INDIABULLS, PNB HOME LOAN, TATA CAPITAL, RELIANCE HOME, DHFL

A: The possession status of Smart Blue Bells is Ready to Move and is available for possession from May 18.

A: Total units in this project are 102.

A: The area of project for 3 BHK is 1716 Sq ft.

A: Price for 3 BHK Apartment/Flat in this project is starting from 1.12 Cr

mainlogo

AddressofChoice is a leading real estate platform that simplifies home buying with verified listings, expert guidance, and end-to-end support — from property search to final purchase.

  • Head Office : A-82, 2nd Floor,
    Sector -4, Noida , UP-201301
  • info@addressofchoice.com
  • +91 89299 59847

© 2013-2026 Addressofchoice.com. All Rights Reserved

mascot