AOC is searching fo you …

SRS Palm Homes

LocationPalwal, Haryana 121102

Starting Base Price 35.65 Lakhs
2 BHK Residential Property
EMI Start at

Status: Ready to Move

  • Apartment Sizes Ranges in Between 497 sqft - 511 sqft.
  • Total Units & Towers: 2000 Units & 0 Towers
  • Total Project Area: 14 Acres
  • Possession: December, 2018
  • Rera: Rera Received

About

3.0
Excellent

SRS Palm Homes is one of the super luxurious apartments being developed by SRS Project. The apartment is located at the heart of the city Palwal. The project offers 2 BHK apartment units at a very competitive and affordable price. The project has good connectivity through National Highway-2, Delhi- Mathura Road.  The design of the SRS Palm Homes is very unique and modern and offers spacious and skillfully designed apartment units with world class living experience and modern facilities. These amenities are designed to create a physically stimulating environment where your children will engage in real sports and forget playing games on smartphones.

Sports Amenities

  • Kids Play Area Kids Play Area
  • Swimming Pool Swimming Pool
  • Sports Facility Sports Facility
  • Gym Gym

Convenience Amenities

  • Car Parking Car Parking
  • Lifts Lifts
  • Wi-fi connectivity Wi-fi connectivity
  • Power Back-up Power Back-up
  • Water Storage Water Storage
  • Waste Disposal Waste Disposal

Price List for the SRS Palm Homes

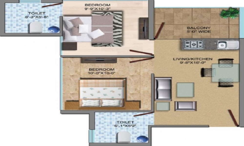
SRS Palm Homes Floor Plan
2 BHK

Carpet Area : 497 Sq. Ft.

call
₹35.65 Lakhs

EMI starting: ₹26,737

SRS Palm Homes Floor Plan
2 BHK

Carpet Area : 511 Sq. Ft.

call
₹36.65 Lakhs

EMI starting: ₹27,490

EMI Calculator

Loan Amount (80% of Total Cost) : 0.29 Cr
Check Rental Listings →

Bank Offers for SRS Palm Homes

imageBackh

Hi! I'm here to answer all your queries.

Vaishali Vasant Tiwari
Relationship Manager

Chat with us

SRS Palm Homes Specifications

Structure
Structure

RCC structure as per code of practice

Security
Security

Security guard at Project main entrance. CCTV Surveillance.

Kitchen
Kitchen

Granite top working platform

Flooring
Flooring

Vitrified tiles in drawing/dining/bedrooms and kitchen

Plumbing & Sanitary
Plumbing & Sanitary

White sanitary wares with European WC, CP fittings

Electrical & Power Backup
Electrical & Power Backup

Copper wiring in concealed PVC conduits Sufficient light and power points

Location

Location

Palwal, Faridabad

50% Livibility score

Palwal is a rapidly developing town located in the southern part of Haryana, often associated with the Faridabad region due to its proximity and historical connection. It lies within the National Capital Region (NCR) and is situated about 29 km from Faridabad and around 60 km from Delhi, making it an important link between urban and semi-urban areas. Palwal has evolved from a historic... Read More

educational-institute

Educational Institute

  • Dr. Br Ambedkar Govt College
  • B.R Ambedkar College
  • GGD SD College
educational-institute

Shopping Center

Properties Price Trend in the Palwal

Similar Properties to SRS Palm Homes in Palwal

Ready to Move
Lavitra Perri Farms
Lavitra Perri Farms

Location Palwal, Faridabad

Price

₹ 1.35 Cr

Tools & Advice

Rates & Trends
Rates & Trends

Know all about Property Rates & Trends in your city.

View More right_arrow
EMI Calculator
EMI Calculator

Quarterly report with insights of Indian real estate market.

View More right_arrow
Investment Hotspot
Investment Hotspot

Quarterly report with insights of Indian real estate market.

View More right_arrow
Research Insights
Research Insights

Quarterly report with insights of Indian real estate market.

View More right_arrow

About Srs Group Builders Projects and Developers

Srs Group Builders
  • 38 Years of Experience
  • 2 Total Projects
  • 0 Ongoing Projects

SRR Homes is one of the famous property developer group based at Hyderabad. It is actively working in the market for over a decade. This company have complete a wide range of projects in both residential and commercial sector; and are planning to extend the same in other parts of the nation. ....
Read More

SRS Palm Homes Project’s Reviews & Ratings

Rating

Frequently Asked Questions

A: The project is located in Palwal ,Faridabad INDIA.

A: The total area of project is 14 Acres

A: Yes, Parking facility is available in this project.

A: Banks associated with this project are SBI, ICICI Bank, HDFC Bank, AXIS BANK, CANARA BANK, INDIABULLS, PNB HOME LOAN, TATA CAPITAL, RELIANCE HOME, DHFL

A: The possession status of Srs Palm Homes is Ready to Move and is available for possession from December 18.

A: Total units in this project are 2000.

A: The area of project for 2 BHK is 497 Sq ft.

A: Price for 2 BHK Apartment/Flat in this project is starting from 35.65 Lakhs

mainlogo

AddressofChoice is a leading real estate platform that simplifies home buying with verified listings, expert guidance, and end-to-end support — from property search to final purchase.

  • Head Office : A-82, 2nd Floor,
    Sector -4, Noida , UP-201301
  • info@addressofchoice.com
  • +91 89299 59847

© 2013-2026 Addressofchoice.com. All Rights Reserved

mascot