AOC is searching fo you …

Tata New Haven

LocationBoisar,Mumbai

Starting Base Price 27.26 Lakhs
2 ,3 BHK Residential Property
EMI Start at

Status: Ready to Move

  • Apartment Sizes Ranges in Between 690 sqft - 1380 sqft.
  • Total Units & Towers: 2200 Units & 0 Towers
  • Total Project Area: 63.58 acres Acres
  • Possession: November, 2012
  • Rera:

About

4.0
Excellent

Tata New Haven offers 1, 2, 3, and 5 BHK apartments in the Boisar region of Mumbai. This residential project has been developed by Tata Homes. It has 21 towers and 5 floors in each tower, along with 940 units in total, and the total project area consists of 17.47 acres. The builders have kept up with their name and fame, and thus, adorned the project with all the necessary amenities like jogging track, landscaped gardens, community hall, party lawn, clubhouse, swimming pool, gymnasium, and indoor games area. The place also has the locational advantage of being situated at the heart of the city.

Sports Amenities

  • Kids Play Area Kids Play Area
  • Sports Facility Sports Facility
  • Swimming Pool Swimming Pool

Convenience Amenities

  • Car Parking Car Parking
  • Club house Club house
  • Lifts Lifts
  • Maintenance Staff Maintenance Staff
  • Power Back-up Power Back-up
  • Waste Disposal Waste Disposal

Safety Amenities

  • Security Personnel Security Personnel

Price List for the Tata New Haven

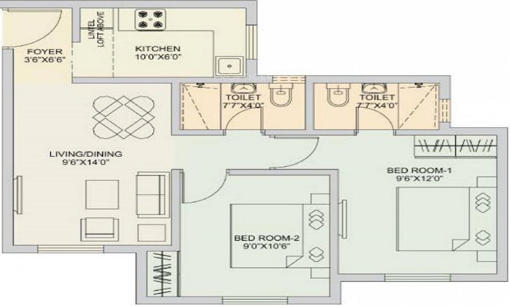
Tata New Haven Floor Plan
2 BHK

Saleable Area : 690 Sq. Ft.

call
₹27.26 Lakhs

EMI starting: ₹20,441

EMI Calculator

Loan Amount (80% of Total Cost) : 21.8 Lakhs
Check Rental Listings →

Bank Offers for Tata New Haven

imageBackh

Hi! I'm here to answer all your queries.

Vaishali Vasant Tiwari
Relationship Manager

Chat with us

Tata New Haven Specifications

Structure
Structure

RCC structure as per code of practice

Security
Security

Security guard at Project main entrance. CCTV Surveillance.

Electrical & Power Backup
Electrical & Power Backup

Copper wiring in concealed PVC conduits Sufficient light and power points Provision for TV and telephone points in living room and all bedrooms

Kitchen
Kitchen

Granite top working platform

Plumbing & Sanitary
Plumbing & Sanitary

White sanitary wares with European WC, CP fittings

Flooring
Flooring

Vitrified tiles in drawing/dining/bedrooms and kitchen

Location

Location

Boisar, Mumbai

36% Livibility score

Boisar is 45 kilometers from the city of Mumbai. This area is basically rural area but due to neighborhood of this city there is significant development in the area as far as residential projects and other infrastructural facilities are concerned. The area has noteworthy connectivity to various parts of Mumbai city by rail and roadway. The area has some of the best projects that range... Read More

educational-institute

Educational Institute

  • Elphinstone College
  • Bombay College of Pharmacy
educational-institute

Transportation Hub

  • Boisar Bus Station
educational-institute

Shopping Center

Properties Price Trend in the Boisar

Similar Properties to Tata New Haven in Boisar

Ready to Move
Suvidha Moti Enclave
Suvidha Moti Enclave

Location Boisar, Mumbai

Price

₹ 16.39 Lakhs

Ready to Move
Dharti Complex
Dharti Complex

Location Boisar, Mumbai

Price

₹ 22.52 Lakhs

Ready to Move
Suvidha Grahnirman Moti Vihar
Suvidha Grahnirman Moti Vihar

Location Boisar, Mumbai

Price

₹ 13.43 Lakhs

Ready to Move
MAAD Yashvant Srushti
MAAD Yashvant Srushti

Location Boisar, Mumbai

Price

₹ 23.11 Lakhs

Ready to Move
Kapcon Ascon Topaz Phase 1
Kapcon Ascon Topaz Phase 1

Location Boisar, Mumbai

Price

₹ 15.21 Lakhs

Tools & Advice

Rates & Trends
Rates & Trends

Know all about Property Rates & Trends in your city.

View More right_arrow
EMI Calculator
EMI Calculator

Quarterly report with insights of Indian real estate market.

View More right_arrow
Investment Hotspot
Investment Hotspot

Quarterly report with insights of Indian real estate market.

View More right_arrow
Research Insights
Research Insights

Quarterly report with insights of Indian real estate market.

View More right_arrow

About Tata Value Homes Projects and Developers

Tata Value Homes
  • 56 Years of Experience
  • 16 Total Projects
  • 0 Ongoing Projects

Tata Value Homes, a subsidiary of the renowned Tata Group, is a leading real estate developer focused on delivering affordable and high-quality housing solutions across India. The developer emphasizes creating well-planned residential communities that combine modern design, functionality, and sustainable living. Known for its transparency, timely project delivery, and adherence to global construction standards, Tata Value Homes has earned the tru....
Read More

Tata New Haven Project’s Reviews & Ratings

Rating

Frequently Asked Questions

A: The project is located in Boisar ,Mumbai INDIA.

A: The total area of project is 63.58 Acres

A: Yes, Parking facility is available in this project.

A: Banks associated with this project are SBI, ICICI Bank, HDFC Bank, AXIS BANK, CANARA BANK, INDIABULLS, PNB HOME LOAN, TATA CAPITAL, RELIANCE HOME, DHFL

A: The possession status of Tata New Haven is Ready to Move and is available for possession from November 12.

A: Total units in this project are 2200.

A: The area of project for 2 BHK is 690 Sq ft.

A: The area of project for 3 BHK is 1380 Sq ft.

A: Price for 2 BHK Apartment/Flat in this project is starting from 28.01 Lakhs

A: Price for 3 BHK Apartment/Flat in this project is starting from 56.03 Lakhs

mainlogo

AddressofChoice is a leading real estate platform that simplifies home buying with verified listings, expert guidance, and end-to-end support — from property search to final purchase.

  • Head Office : A-82, 2nd Floor,
    Sector -4, Noida , UP-201301
  • info@addressofchoice.com
  • +91 89299 59847

© 2013-2026 Addressofchoice.com. All Rights Reserved

mascot