AOC is searching fo you …

Casagrand Cherry Pick

LocationPerumbakkam, OMR, Chennai, Chennai south

Starting Base Price 36.58 Lakhs
1 ,2 ,3 BHK Residential Property
EMI Start at

Status: Ready to Move

  • Apartment Sizes Ranges in Between 701 sqft - 1187 sqft.
  • Total Units & Towers: 380 Units & 14 Towers
  • Total Project Area: 7.32 Acres
  • Possession: January, 2017
  • Rera:

About

3.0
Excellent

A home is the best place for those who love to spend time with family. For such a home one can check the project Casagrand Cherry Pick.Casagrand Builder is back with their brand new residential project named as Casagrand Cherry Pick. This project is situated in Perumbakkam, Chennai. Perumbakkam region is situated near the fast developing IT corridor of Chennai. Various neighbouring areas include Guindy, Tambaram, Kelambakkam, Sembakkam etc. This region is well connected to Medavakkam through the 7-kilometre long Road. This project offers 1,2 and 3 BHK residential apartments to its residents. The area of the apartments ranges between 55.81 sq.mt to 165.25 sq.mt This project is spread over an area of 7.44 acres of land and it provides accommodation for 382 units. Various educational institutions, hospitals, banks etc. are nearby this project. This project also offers various modern facilities such as a grand courtyard, clubhouse, swimming pool, gym, party hall, children’s play area etc.

Sports Amenities

  • Kids Play Area Kids Play Area
  • Swimming Pool Swimming Pool
  • Gym Gym

Convenience Amenities

  • Lifts Lifts
  • Car Parking Car Parking
  • Power Back-up Power Back-up
  • Multipurpose Hall Multipurpose Hall
  • Cafeteria Cafeteria
  • Club house Club house
  • garden Garden

Price List for the Casagrand Cherry Pick

Casagrand Cherry Pick Floor Plan
1 BHK

Carpet Area : 590 Sq. Ft.

call
₹36.58 Lakhs

EMI starting: ₹27,434

Casagrand Cherry Pick Floor Plan
1 BHK

Carpet Area : 618 Sq. Ft.

call
₹38.32 Lakhs

EMI starting: ₹28,736

Casagrand Cherry Pick Floor Plan
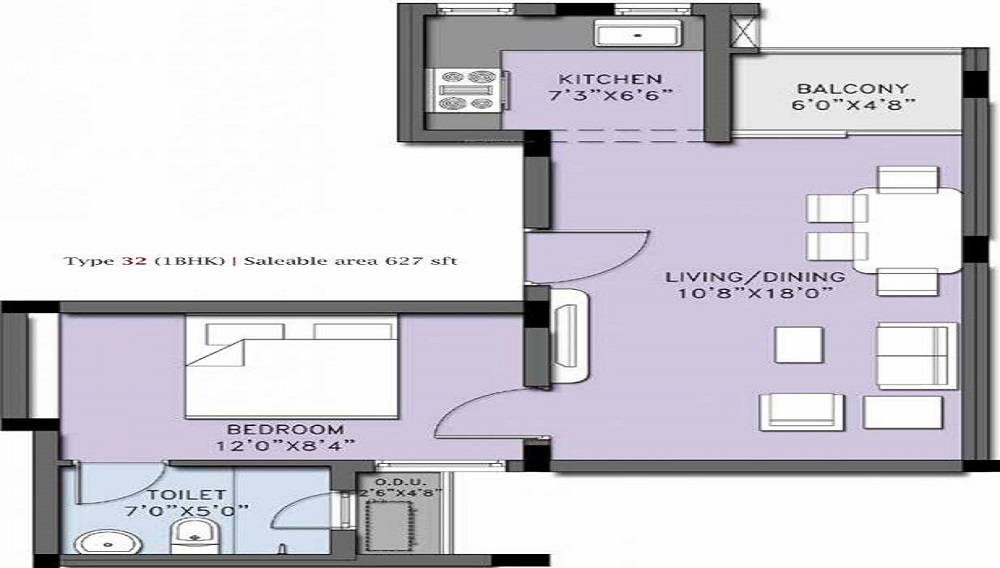
1 BHK

Carpet Area : 627 Sq. Ft.

call
₹38.87 Lakhs

EMI starting: ₹29,155

Casagrand Cherry Pick Floor Plan
1 BHK

Carpet Area : 701 Sq. Ft.

call
₹43.46 Lakhs

EMI starting: ₹32,596

EMI Calculator

Loan Amount (80% of Total Cost) : 29.26 Lakhs
Check Rental Listings →

Bank Offers for Casagrand Cherry Pick

imageBackh

Hi! I'm here to answer all your queries.

Vaishali Vasant Tiwari
Relationship Manager

Chat with us

Casagrand Cherry Pick Specifications

Area
Area

Clear Land Parcel with No High Tension Wire and No Villages.

Flooring
Flooring

Vitrified tiles in drawing/dining/bedrooms and kitchen.

Electrical & Power Backup
Electrical & Power Backup

Copper wiring in concealed PVC conduits Sufficient light and power points.

Kitchen
Kitchen

Kitchen will be designed to suit modular kitchen Panic button connected to security on the ground floor.

Structure
Structure

Seismic Zone 2 compliant structure and Solid Block Masonry.

Planning
Planning

Plots in the well planned urban estate with the provision of quality infrastructure and public utility services.

Location

Location

Perumbakkam, Chennai

48% Livibility score

Perubakkam is a suburban neighborhood which in located in the Kanchipuram district of Tamil Nadu. It is surrounded by Sholinganallur, Chemmencheri, Medavakkam and Sithalapakkam. Perubakkam lies in close proximity to the It corridor which is a fast growing and developing zone and is also close to the Old Mahabalipuram Road. The ELCOT SEZ campus which houses a number of IT companies lik... Read More

educational-institute

Educational Institute

  • Zigma Matriculation Higher Secondary School
  • NPS International
  • Asan Memorial College Of Arts And Science
  • Government Arts and Science College, Perumbakkam
educational-institute

Transportation Hub

  • Perumbakkam Limit
educational-institute

Shopping Center

Properties Price Trend in the Perumbakkam

Similar Properties to Casagrand Cherry Pick in Perumbakkam

Ready to Move
AKS Radiance
AKS Radiance

Location Perumbakkam, Chennai

Price

₹ 39.06 Lakhs

Ready to Move
Antony The Pebbles
Antony The Pebbles

Location Perumbakkam, Chennai

Price

₹ 5.46 Lakhs

Ready to Move
Indu Housing Perumbakkam
Indu Housing Perumbakkam

Location Perumbakkam, Chennai

Price

₹ 58.9 Lakhs

Ready to Move
Karthiga Kanchan
Karthiga Kanchan

Location Perumbakkam, Chennai

Price

₹ 48.36 Lakhs

Ready to Move
Leo Housing Kamaraj Avenue
Leo Housing Kamaraj Avenue

Location Perumbakkam, Chennai

Price

₹ 62 Lakhs

Tools & Advice

Rates & Trends
Rates & Trends

Know all about Property Rates & Trends in your city.

View More right_arrow
EMI Calculator
EMI Calculator

Quarterly report with insights of Indian real estate market.

View More right_arrow
Investment Hotspot
Investment Hotspot

Quarterly report with insights of Indian real estate market.

View More right_arrow
Research Insights
Research Insights

Quarterly report with insights of Indian real estate market.

View More right_arrow

About Casagrand Builder Projects and Developers

Casagrand Builder
  • 25 Years of Experience
  • 68 Total Projects
  • 0 Ongoing Projects

It is a real estate enterprise committed to building aspirations and delivering value. In the last seventeen years, we have developed over 36 million sqft of prime residential real estate across Chennai, Bengaluru, and Coimbatore. ....
Read More

Casagrand Cherry Pick Project’s Reviews & Ratings

Rating

Frequently Asked Questions

A: The project is located in Perumbakkam ,Chennai INDIA.

A: The total area of project is 7.32 Acres

A: Yes, Parking facility is available in this project.

A: Banks associated with this project are SBI, ICICI Bank, HDFC Bank, AXIS BANK, CANARA BANK, INDIABULLS, PNB HOME LOAN, TATA CAPITAL, RELIANCE HOME, DHFL

A: The possession status of Casagrand Cherry Pick is Ready to Move and is available for possession from January 17.

A: Total units in this project are 380.

A: The area of project for 1 BHK is 590 Sq ft.

A: The area of project for 2 BHK is 1187 Sq ft.

A: The area of project for 3 BHK is 1385 Sq ft.

A: Price for 1 BHK Apartment/Flat in this project is starting from

A: Price for 2 BHK Apartment/Flat in this project is starting from

A: Price for 3 BHK Apartment/Flat in this project is starting from

mainlogo

AddressofChoice is a leading real estate platform that simplifies home buying with verified listings, expert guidance, and end-to-end support — from property search to final purchase.

  • Head Office : A-82, 2nd Floor,
    Sector -4, Noida , UP-201301
  • info@addressofchoice.com
  • +91 89299 59847

© 2013-2026 Addressofchoice.com. All Rights Reserved

mascot