AOC is searching fo you …

The Park Aarambh

LocationMira Road and Beyond, Palghar

Starting Base Price 25 Lakhs
1 ,2 BHK Residential Property
EMI Start at

Status: Ready to Move

  • Apartment Sizes Ranges in Between 400 sqft - 513 sqft.
  • Total Units & Towers: 12 Units & 1 Towers
  • Total Project Area: 0.08 Acres
  • Possession: December, 2023
  • Rera: P99000034903

About

4.0
Excellent

The Park Aarambh is a remarkable Residential project located in the well-connected Palghar locality of Mumbai. Spanning 0.08 Acres, the project features 12 Units in 1 Towers, offering a mix of 1 BHK+1T, to 2 BHK+2T Apartments ranging from 400 sqft to 513 sqft. The address for the project is mira road and beyond, palghar.

Available Property Sizes

The Apartments at The Park Aarambh are available in a variety of sizes. The 1 BHK+1T units start at 400 sqft. The larger 2 BHK+2T Apartments go up to 513 sqft, providing ample space for families of all sizes.

Price Range

The prices for the Apartments at The Park Aarambh are designed to be accessible, with 1 BHK+1T units priced from 25 Lakhs and 2 BHK+2T Apartments from 32 Lakhs, depending on the size and configuration.

Developer Information

The project is being developed by The Park Realty, known for its commitment to quality and timely delivery. RERA registration number for the project is P99000034903 Units. Possession is expected to begin in 2023-12-13, ensuring that the property is well on track for future homeowners.

Amenities and Features

The Park Aarambh is designed to offer a blend of luxury and convenience. Key sports amenities include a Sports Facility, Kids Play Area, Swimming Pool, Gym. For relaxation, the development offers a Lifts, Car Parking, Power Back-up, Water Storage, Garden. The security features include CCTV for enhanced safety.

Construction and Specifications

The project is constructed using premium materials such as vitrified tiles for flooring, granite countertops in the kitchens, and high-end sanitary ware in the bathrooms. These materials ensure both durability and elegance in every home.

Key Information

  • Total Area: 0.08 Acres

  • Units & Towers: 12 Units, 1 Towers

  • Sizes: 400 sqft to 513 sqft

  • Project Address: mira road and beyond, palghar

  • Type: Residential Apartments

  • Developer: The Park Realty

  • RERA Registration No.: P99000034903 Units

  • Possession Start: 2023-12-13

  • Construction Quality: Premium materials, vitrified tiles, granite countertops

  • Security: CCTV

  • Sports Facilities: Sports Facility, Kids Play Area, Swimming Pool, Gym

  • Convenience Amenities: Lifts, Car Parking, Power Back-up, Water Storage, Garden

Location Benefits

The Park Aarambh benefits from its location in Palghar, offering great connectivity to schools, hospitals, shopping malls, and public transport systems. This makes it an ideal place to live, especially for families.

Developer and Project Details

Possession at The Park Aarambh will begin in 2023-12-13, and the project is RERA registered under P99000034903 Units. Developed by The Park Realty, this project promises a reliable investment for prospective homeowners.

Sports Amenities

  • Sports Facility Sports Facility
  • Kids Play Area Kids Play Area
  • Swimming Pool Swimming Pool
  • Gym Gym

Convenience Amenities

  • Lifts Lifts
  • Car Parking Car Parking
  • Power Back-up Power Back-up
  • Water Storage Water Storage
  • garden Garden

Safety Amenities

  • CCTV CCTV

Price List for the The Park Aarambh

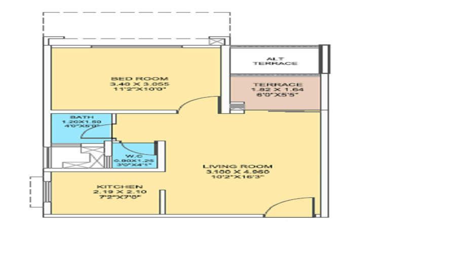
The Park Aarambh Floor Plan
1 BHK

Carpet Area : 400 Sq. Ft.

call
₹25 Lakhs

EMI starting: ₹18,750

EMI Calculator

Loan Amount (80% of Total Cost) : 20 Lakhs
Check Rental Listings →

Bank Offers for The Park Aarambh

imageBackh

Hi! I'm here to answer all your queries.

Vaishali Vasant Tiwari
Relationship Manager

Chat with us

The Park Aarambh Specifications

Plumbing & Sanitary
Plumbing & Sanitary

White sanitary wares with European WC, CP fittings.

Flooring
Flooring

Vitrified tiles in drawing/dining/bedrooms and kitchen.

Kitchen
Kitchen

Kitchen will be designed to suit modular kitchen Panic button connected to security on the ground floor.

Planning
Planning

Plots in the well planned urban estate with the provision of quality infrastructure and public utility services.

Structure
Structure

Seismic Zone 2 compliant structure and Solid Block Masonry.

Area
Area

Clear Land Parcel with No High Tension Wire and No Villages

Location

Location

Palghar, Mumbai

60% Livibility score

Palghar is a small city located in Thane district and 129kms away from the city of Ratnagiri. Palghar is also in the vicinity of Gujarat-Maharashtra border and it is also located 87kms away from the capital city of Maharashtra- Mumbai. The town is connected to other cities via railway and road connectivity; Palghar is connected to Mumbai via suburban railway network and NH8 connects i... Read More

educational-institute

Educational Institute

  • Indian Institute of Technology Bombay
  • M.M.K. College
educational-institute

Transportation Hub

  • Palghar Bus Depot
educational-institute

Shopping Center

Properties Price Trend in the Palghar

Similar Properties to The Park Aarambh in Palghar

Ready to Move
Angel Meadows Kanhaiya
Angel Meadows Kanhaiya

Location Palghar, Mumbai

Price

₹ 22.8 Lakhs

Ready to Move
Gundecha Woods
Gundecha Woods

Location Palghar, Mumbai

Price

₹ 21 Lakhs

Ready to Move
Jigar Raghukul
Jigar Raghukul

Location Palghar, Mumbai

Price

₹ 23.8 Lakhs

Ready to Move
Jigar Raghu Darshan
Jigar Raghu Darshan

Location Palghar, Mumbai

Price

₹ 18.44 Lakhs

Ready to Move
Viva Vishnupuram
Viva Vishnupuram

Location Palghar, Mumbai

Price

₹ 20.88 Lakhs

Tools & Advice

Rates & Trends
Rates & Trends

Know all about Property Rates & Trends in your city.

View More right_arrow
EMI Calculator
EMI Calculator

Quarterly report with insights of Indian real estate market.

View More right_arrow
Investment Hotspot
Investment Hotspot

Quarterly report with insights of Indian real estate market.

View More right_arrow
Research Insights
Research Insights

Quarterly report with insights of Indian real estate market.

View More right_arrow

About The Park Realty Projects and Developers

The Park Realty
  • 15 Years of Experience
  • 1 Total Projects
  • 0 Ongoing Projects

The Park Aarambh is a residential development in Navali, Palghar. The project is built by The Park Realty. They provide 1BHK,2BHK apartments with all necessities. ....
Read More

The Park Aarambh Project’s Reviews & Ratings

Rating

Frequently Asked Questions

A: The project is located in Palghar ,Mumbai INDIA.

A: The total area of project is 0.08 Acres

A: Yes, Parking facility is available in this project.

A: Banks associated with this project are SBI, ICICI Bank, HDFC Bank, AXIS BANK, CANARA BANK, INDIABULLS, PNB HOME LOAN, TATA CAPITAL, RELIANCE HOME, DHFL

A: The possession status of The Park Aarambh is Ready to Move and is available for possession from December 23.

A: Total units in this project are 12.

A: The area of project for 1 BHK is 400 Sq ft.

A: The area of project for 2 BHK is 513 Sq ft.

A: Price for 1 BHK Apartment/Flat in this project is starting from 25 Lakhs

A: Price for 2 BHK Apartment/Flat in this project is starting from 32 Lakhs

mainlogo

AddressofChoice is a leading real estate platform that simplifies home buying with verified listings, expert guidance, and end-to-end support — from property search to final purchase.

  • Head Office : A-82, 2nd Floor,
    Sector -4, Noida , UP-201301
  • info@addressofchoice.com
  • +91 89299 59847

© 2013-2026 Addressofchoice.com. All Rights Reserved

mascot